La Situazione Operativa
La struttura
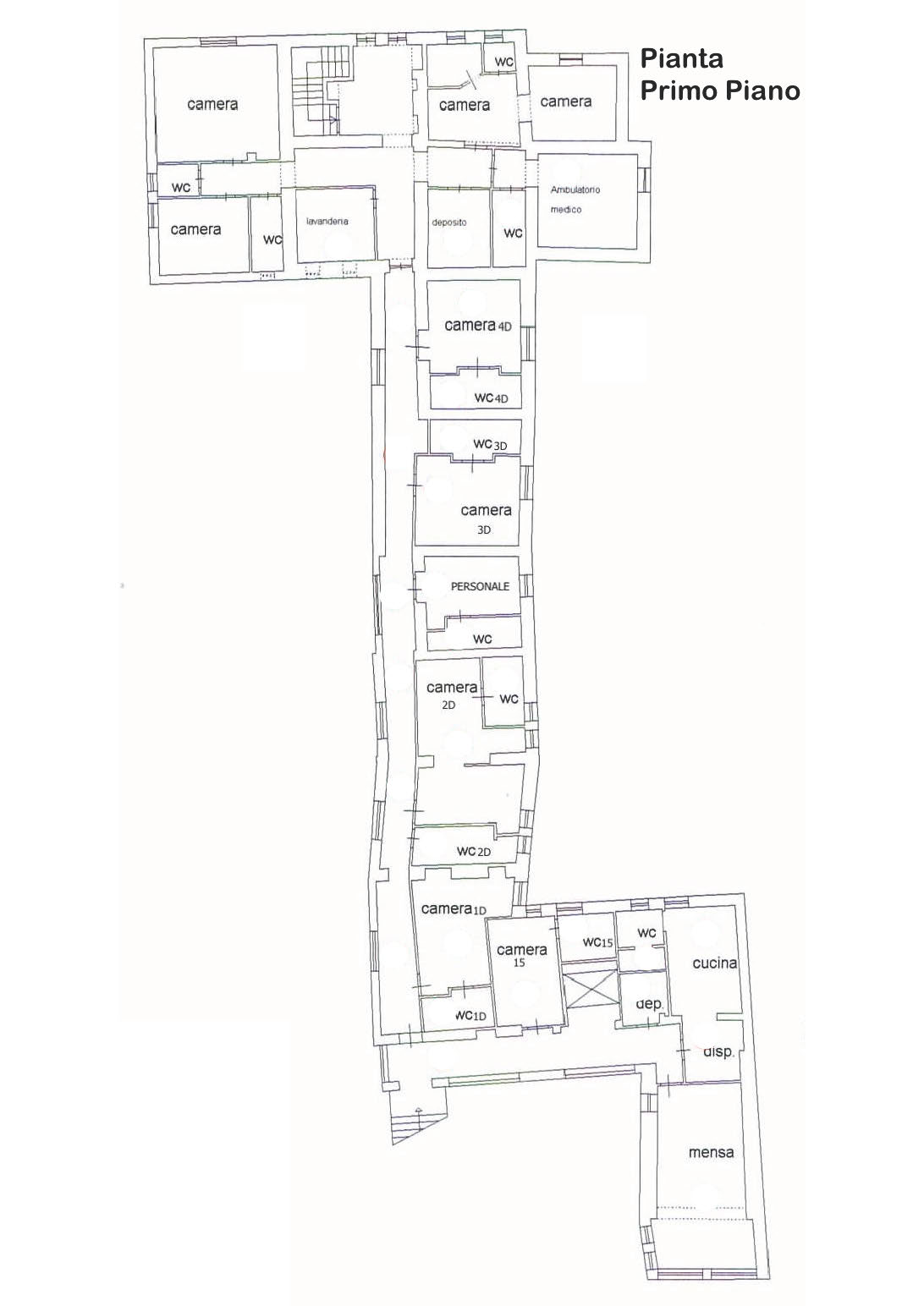
La Fondazione opera nel complesso immobiliare sito alla Via Casale SS. Annunziata n°3, esteso per circa 1100 mq coperti netti.
Al complesso immobiliare, che si sviluppa su due piani fuori terra, si accede a mezzo di un viale privato, carrabile dotato anche di parcheggio. Il complesso dispone anche di un accesso pedonale dalla Via V. Emanuele n°221, di fronte all’imbocco della Via dei Bagni, che conduce alla spiaggia della Chiaia.
Parte del piano terra del complesso, che non dispone di spazi a verde, è concessa in locazione ed ospita il Centro Dialisi al servizio dell’intera Isola.
La Fondazione occupa oltre 600 mq netti, essenzialmente tutti i locali del primo piano nonché quelli del piano terra accessibili dalla Via V. Emanuele n° 221, in una parte dei quali si trova l’amministrazione.
Di seguito le piante dei locali del complesso immobiliare utilizzati dalla Fondazione
![]() |
![]() |
La Fondazione, come da Statuto, è retta da un Consiglio di Amministrazione che opera in maniera totalmente gratuita. Al fine di attendere alle necessità dell’ente si avvale della figura di un Segretario che cura la tenuta della documentazione e della corrispondenza, oltre che la stesura dei Verbali delle sedute del C. d’A., nonché coadiuva l’Amministrazione in tutti gli adempimenti burocratici e contabili come: approvvigionamenti e pagamenti di beni e servizi, riscossione delle rette e delle rendite, aggiornamento e registrazione dei contratti di fitto, commissionare e seguire i lavori di piccola manutenzione, mantenere i contatti con i conduttori, curare la corrispondenza dell’ente, etc.
Relativamente alla Casa Alloggio per anziani, attraverso la quale la Fondazione esplica la propria opera di assistenza agli indigenti poveri dell’isola, in ossequio all’autorizzazione rilasciata dagli Organi competenti, nella fattispecie l’Ambito Sociale Napoli 13 che cura i territori delle isole di Ischia e Procida e che ha fissato l’organico minimo a n. 8 unità lavorative, la Fondazione si avvale di personale qualificato. In particolare di Operatori Socio Assistenziali (O.S.A.), che turnando tra loro assicurano agli ospiti della Casa alloggio assistenza e vigilanza H24 per 365 giorni l’anno; tra questi la Fondazione ha scelto di tenere anche un Infermiere professionale, per seguire le somministrazioni delle terapie disposte dai medici del S.S.N. che seguono personalmente ciascun ospite.
È inoltre previsto un Addetto alla preparazione dei pasti, un Animatore professionale, capace di organizzare attività atte a stimolare l’interesse degli ospiti, nonché la figura del Coordinatore dei servizi, in possesso di adeguate competenze; per dette figure la Fondazione ha scelto soluzioni part-time, al fine di contenere i costi di gestione.
Complessivamente, quindi, l’Ospedale Civico Albano Francescano si avvale di n. 8 collaboratori, di cui alcuni a tempo parziale. Ad essi, causa assenze non programmabili (malattie, etc), si aggiunge il personale supplente in base alle necessità del momento.
Il contratto di lavoro applicato al personale è quello UNEBA, corrispondente all’attività prevalente svolta dalla Fondazione.
I costi del personale, con tale organizzazione, si aggirano sui 230/240mila €uro/anno.
Nel dare assistenza alla persona anziana, sia per ciò che riguarda le autonomie nel quotidiano che per quel che riguarda la cura dell’ambiente in cui la persona vive, la struttura tiene sempre presente il rispetto e la tutela che si deve alla persona. L’anziano ha in particolar modo bisogno di sentirsi amato, protetto ed essere inserito in un ambiente ancora utile e produttivo. Gli operatori presenti all’interno della struttura sanno riconoscere queste esigenze, e si propongono agli Ospiti con i dovuti modi, l’educazione e l’amorevolezza del caso, concedendo o stimolando l’anziano a mantenere vive le sue capacità.
La struttura, dunque, realizza un ambiente familiare in modo che gli anziani si sentano a casa propria, con i ritmi e le regole del vivere insieme, comuni ad ogni struttura familiare, ma soprattutto con quella misura di calore e di sostegno di cui ogni persona ha diritto. Lo scopo è quello di recuperare, o mantenere, le abilità di ogni persona, di far crescere l’autonomia personale e diminuire per quanto possibile ciò che può essere causa di emarginazione.
Gli anziani devono sentirsi accolti, devono trovare conforto e tranquillità. Per questo assume un ruolo centrale lo svolgimento di alcune attività che hanno lo scopo di favorire il riconoscimento e la valorizzazione di ogni singolo anziano. Attività che sono necessarie sia al miglioramento della qualità della vita e sia affinché la “casa comune” venga vissuta come un qualcosa di proprio e non solo come un servizio.
A queste motivazioni inoltre si associa il valore indiscutibile dell’impegno “lavorativo” come strumento educativo per mantenere e se possibile migliorare le abilità della persona. Allo scopo si svolgono quotidianamente attività di “laboratorio” che comprendono soprattutto attività di tipo manuale e che in genere vengono collegate alle nostre tradizioni culturali. Ad esempio, durante il periodo pasquale, stante la tradizionale processione dei “misteri” che si svolge il Venerdì Santo con la collaborazione dei ragazzi dell’isola, i laboratori si concentrano su attività legate alla creazione di accessori utili per i “misteri”, mentre, nel periodo natalizio gli anziani realizzano gli addobbi per la “casa” e per il tradizionale “presepe”. Di recente il presepe realizzato dagli anziani dell’Albano Francescano ha partecipato al premio annuale patrocinato dal Comune e intitolato al maestro scomparso “Nunzio Arbilli”, ottenendo ben due riconoscimenti. Durante l’anno vengono, inoltre, realizzati diversi oggetti che all’occasione sono esposti in vendite di beneficenza, dove gli stessi anziani possono partecipare attivamente anche alla vendita.
Altre attività sono di carattere culturale e vengono svolte sia individualmente che in gruppo, come ad esempio la lettura dei quotidiani o di riviste per il recupero e il mantenimento delle abilità di lettura o anche attività di scrittura.
Infine, vengono favorite attività ludico ricreative, che vedono gli anziani coinvolti molto spesso nell’ascoltare musica e/o cantare; si organizzano feste in ricorrenze particolari, grazie anche all’aiuto di volontari locali e c’è attenzione anche a festeggiare il compleanno degli ospiti.
In estate si coglie l’occasione per organizzare nel cortiletto interno della struttura momenti di condivisione, come consumare un gelato nel pomeriggio o gustare la pizza per cena.
La Santa Messa all’interno della struttura è celebrata ogni settimana, a giorni stabiliti, vi è poi l’incontro pomeridiano con gruppi di volontari locali, fra cui anche un gruppo di preghiera.
Tutte le attività e le iniziative sono sempre svolte nel rispetto della volontà di ciascun ospite che, in base alle proprie condizioni /convinzioni e/o desideri, ne prende volontariamente parte.
Nulla è imposto, non c’è l’obbligo del divertirsi, ma si cerca di stimolare ed assecondare scelte che ogni persona, in casa sua, farebbe in piena autonomia.



